O Concello de Beariz acaba de adxudicar as obras de construción do velorio municipal á empresa “Construcións Portela”, de Sarreaus, pola cantidade de 280.000 €, cantidade da que 250.000 € son aportados directamente pola Deputación de Ourense. A súa ubicación é na avenida Daniel Vázquez Gulías.
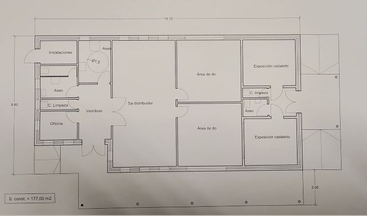
Trátase dun edificio dunha planta sobre rasante e cunha superficie total de 216 metros cadrados, cun deseño tradicional e integrado no entorno, con materiais e solucións construtivas e materiais propio da zona.



OS MELLORES ESTABLECEMENTOS
O seu deseño responde ao programa de necesidades plantexado polo Concello: porche, vestíbulo, despacho, sala distribuidora, dúas áreas de dor, dous salóns de exposición do cadáver, dous aseos públicos (un deles adaptado), cuarto de limpieza, zona do persoal, vestíbulo a salas de exposición do cadáver, portal acceso funerarias e cuarto de instalacións.
As fachadas plantéxasen con pedras de cantaría de 10 centímetros. Nas salas de exposición de cadáver, para manter unha temperatura entre 0 e 4º C, executaranse con panel aislante tipo sándwich, constituídos por unha dobre lámina de aceiro inxectada con aislamento térmico de espuma de poliuterano, dun espesor de 60 milímetros. Disporán dunha cristaleira impracticable de grandes dimensións de vidro dobre con cámara de aire e dotaranse dun equipo de refrixeración con visor de temperatura no exterior da sala.









